マンション
2025.09.22
大阪市 マンションリノベ






今回のリフォームはマンションの一室を、一部お部屋の形を残しながらのリフォームです。
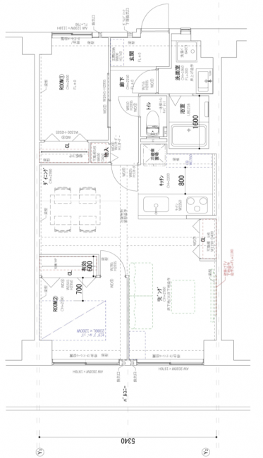
まずは図面から見ていきましょう!
大まかな位置やレイアウトは変わらないですが、その分かなり丁寧に解体や最初の施工をやっていかないと、後々になって取り返しのつかない状況になります。
慎重に作業をしていきます。
2日程でほぼ全ての解体が完了しました!
さてここからは既存の壁を残したところなどをしっかりとケアしながら、造作を進めていきます。
天井も改めて下地を造作し中には電気配線を仕込んでいます。
ここで仕込めるとだいぶ後々の作業が楽になるので、電気はこの段階で入れていきます。
造作も終わり床や枠が入りましたので、一旦養生してこの後の壁紙(クロス)施工にバトンタッチです。
既存で残した壁などもありますので、まずは全ての壁紙を剥がした上でしっかりと貼り付けの下地処理をしてから施工をしていきます。
一部の床はフロアタイルやクッションフロア施工になるので、フローリングとは別日に施工です。
クロスはかなり下地の凹凸を拾ってしまう(浮き出てきてしまう)ため、貼る前になるべく全てを平にしておく必要があります。

クッションフロア施工のため床下地はそのままにしてあります
それでは最後に完工写真をどうぞ!
まずは図面から見ていきましょう!
![]() Before |
![]() After |
大まかな位置やレイアウトは変わらないですが、その分かなり丁寧に解体や最初の施工をやっていかないと、後々になって取り返しのつかない状況になります。
慎重に作業をしていきます。
![]() |
![]() |
2日程でほぼ全ての解体が完了しました!
さてここからは既存の壁を残したところなどをしっかりとケアしながら、造作を進めていきます。
![]() |
![]() |
![]() |
天井も改めて下地を造作し中には電気配線を仕込んでいます。
ここで仕込めるとだいぶ後々の作業が楽になるので、電気はこの段階で入れていきます。
![]() |
![]() |
![]() |
![]() |
![]() |
![]() |
![]() |
![]() |
![]() |
![]() |
![]() |
![]() |
![]() |
![]() |
造作も終わり床や枠が入りましたので、一旦養生してこの後の壁紙(クロス)施工にバトンタッチです。
既存で残した壁などもありますので、まずは全ての壁紙を剥がした上でしっかりと貼り付けの下地処理をしてから施工をしていきます。
一部の床はフロアタイルやクッションフロア施工になるので、フローリングとは別日に施工です。
![]() |
![]() |
![]() |
![]() |
![]() |
![]() |
![]() |
![]() |
![]() |
クロスはかなり下地の凹凸を拾ってしまう(浮き出てきてしまう)ため、貼る前になるべく全てを平にしておく必要があります。
![]() |
![]() |
![]() |
![]() |
![]() |
![]() |
![]() |
![]() |
![]() |
![]() |
![]() |
![]() |
![]() |
![]() |
![]() |
![]() |
![]() |
![]() |
![]() |
![]() |
![]() |
![]() |
![]() |
![]() |

クッションフロア施工のため床下地はそのままにしてあります
それでは最後に完工写真をどうぞ!
![]() |
![]() |
![]() |
![]() |
![]() |
![]() |
![]() |
![]() |
![]() |
![]() |
![]() |
![]() |
![]() |
![]() |
![]() |
![]() |
![]() |
![]() |
![]() |
![]() |
![]() |
![]() |
![]() |
![]() |
![]() |
![]() |
![]() |
![]() |
![]() |
![]() |
![]() |
![]() |
![]() |
![]() |
![]() |
![]() |
![]() |































































































