マンション
2025.09.21
箕面市 マンションリノベ






今回はマンションの一室を一部壁を残しながらのリノベです!
最近お問い合わせを多く頂く、一部残しのリノベ。
うまく新旧を融合できているリノベを見ていきましょう。
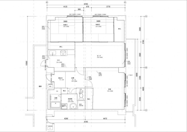
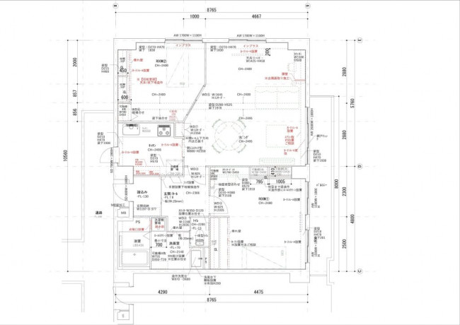
まずは図面から!既存図面とプラン図面を並べて見てみましょう。
![]() Before |
![]() After |
まずは和室を洋室に変更し、和室の時の間取りではなく、リビングと新規洋室を続きの大きな広間として間取り変更します。
次に浴室や洗面などのある場所に元々は電気温水器があるのですが、これを撤去しガス給湯器へ変更します。
通常こうした変更はマンション規約により不可となるケースが多いですが、今回のマンションさんではOKが出てましたので(他のお部屋で変更していらっしゃるお宅もあった為、リフォームでの電気→ガスは今回が特別な感じはありませんでした)ガス給湯器は玄関出てすぐのパイプスペースへ新設し、電気温水器は撤去します。
ではまずは解体前のお部屋のお写真からどうぞ!
![]() |
![]() |
![]() |
![]() |
![]() |
![]() |
![]() |
![]() |
![]() |
![]() |
![]() |
![]() |
![]() |
![]() |
![]() |
![]() |
![]() |
![]() |
![]() |
![]() |
![]() |
![]() |
![]() |
![]() |
![]() |
よく見ていただくとわかるのですが、今回はフローリングではなくカーペットです。
カーペットの施工がなかなかないので貴重ですね!
細かいお話をすると、施工手順が若干変わります。
◆フローリング仕上げの場合(かなり大雑把に言うと・・・)
お部屋の造作→フローリング→その他の仕上げ
◆カーペット仕上げの場合
お部屋の造作→電気などいろいろな仕上げ→一番最後にカーペット施工
こんな感じになります。
いつもと違うとなんだかワクワク!それではまずはお部屋の造作から見ていきましょう!
![]() |
![]() |
![]() |
![]() |
![]() |
![]() |
![]() |
![]() |
![]() |
![]() |
![]() |
![]() |
![]() |
![]() |
![]() |
![]() |
今回は居室の床をカーペット施工用に全て板張りしています。
床下地が終わったらすぐに養生をして、カーペットを施工するときに床が汚れていることのないように(もちろん施工前に掃除をしますが)なるべく綺麗に保てるよう、養生をしてあります。
![]() |
![]() |
![]() |
![]() |
![]() |
![]() |
![]() |
![]() |
![]() |
![]() |
![]() |
![]() |
![]() |
![]() |
![]() |
![]() |
![]() |
![]() |
![]() |
![]() |
![]() |
カーペットを残し全ての施行が完了しました!
それでは最後に完工写真をどうぞ!
![]() |
![]() |
![]() |
![]() |
![]() |
![]() |
![]() |
![]() |
![]() |
![]() |
![]() |
![]() |
![]() |
![]() |
![]() |
![]() |
![]() |
![]() |
![]() |
![]() |
![]() |
![]() |
![]() |
![]() |
![]() |
![]() |
![]() |
![]() |
![]() |
![]() |
![]() |
![]() |
![]() |
![]() |
![]() |
![]() |
![]() |
![]() |
![]() |
![]() |
![]() |
![]() |
![]() |
![]() |
![]() |
![]() |
![]() |
![]() |
![]() |
![]() |
今回も素敵なお部屋になりました!
えびすをご用命いただきありがとうございました!






















































































































