マンション
2025.09.16
吹田市 マンション一部リフォーム






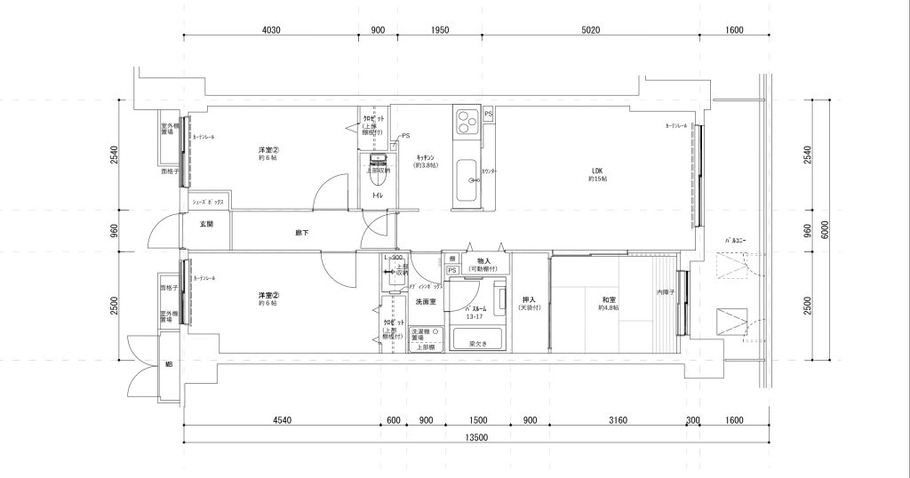
まずは間取りのご紹介
既設図↓

プラン図↓

それでは早速施工事例写真をどうぞ!
◎施工前写真◎
何年か前にリフォームされた事があるそうで、水回りは基本的にとても綺麗✨
今回水回りはキッチンのみの交換です。
◎解体写真◎
解体が終わりいよいよ造作工事の開始!
◎造作工事写真◎
◎ここからは完工写真✨
まずは玄関
玄関の床はもともとタイル貼りでしたが、タイルの上からフロアタイルで上貼り施工しました。
框や玄関収納はそのまま残すので、色のバランスを考えながら施主様と悩みました☺

廊下はクロスの貼替とフローリングの貼替をしました。
ナチュラルな感じをご希望だったので使ったフローリングはパナソニックベリティスフロアのオーク柄
残すものと新しいもののバランスがとても良い感じになりました☺
メインのキッチン
どうしてもBOSHの食洗器が入れたいというのが施主様の第一希望
色々メーカーを探してみましたが一般建材メーカーの既製でBOSHを入れれるのは
タカラスタンダードさんだけでしたのでメーカーは決定(^^♪
最近フロントオープンのキッチンを選ばれるお客様が増えたのですが、えびすもBOSHを入れたのは初めて✨
とてもカッコイイキッチンに☺
背面のカップボードもタカラさんですが、上部の棚は集成材を設置
長さはどれくらいにするか、奥行きはいくらにするか、どの位置につけるかなど決める事はたくさん!
上下で少しずらして設置したのがとてもバランスよく仕上がりました✨
広々したリビングと収納
収納の大きさは既存のものと一緒ですが使いやすい収納に生まれ変わりました!
キッチン横にあった収納は建具が元々背が低く、上のものが入れにくいとお悩みでしたので、
次は背の高い建具に変え、中の棚は可動棚にし使いやすい収納に☺
押入だった収納のサイズはそのままの大きさですが、中はL字の可動棚に
お打合せの際に何をしまわれるかを何度もお打合せし、この形に決定(^^♪
収納の建具は全てパナソニックのベリティスシリーズの建具を☺
色目はパールグレー✨
小規模ではありますがこだわりが沢山つまったリフォームになりました。
元々のお家の家具等とても可愛いものを選ばれるお客様だったので、
色選びもとてもバランスよく可愛いお部屋になりました(^^♪
家具も買われるとおっしゃってたので、きっとさらに可愛いお部屋になっていると思います☺
既設図↓

プラン図↓

それでは早速施工事例写真をどうぞ!
◎施工前写真◎
![]() |
![]() |
![]() |
![]() |
![]() |
![]() |
![]() |
![]() |
![]() |
何年か前にリフォームされた事があるそうで、水回りは基本的にとても綺麗✨
今回水回りはキッチンのみの交換です。
◎解体写真◎
![]() |
![]() |
![]() |
![]() |
![]() |
![]() |
![]() |
![]() |
![]() |
![]() |
![]() |
![]() |
解体が終わりいよいよ造作工事の開始!
◎造作工事写真◎
![]() |
![]() |
![]() |
![]() |
![]() |
![]() |
![]() |
![]() |
![]() |
![]() |
![]() |
![]() |
![]() |
![]() |
![]() |
◎ここからは完工写真✨
まずは玄関
玄関の床はもともとタイル貼りでしたが、タイルの上からフロアタイルで上貼り施工しました。
框や玄関収納はそのまま残すので、色のバランスを考えながら施主様と悩みました☺

廊下はクロスの貼替とフローリングの貼替をしました。
ナチュラルな感じをご希望だったので使ったフローリングはパナソニックベリティスフロアのオーク柄
残すものと新しいもののバランスがとても良い感じになりました☺
![]() |
![]() |
メインのキッチン
どうしてもBOSHの食洗器が入れたいというのが施主様の第一希望
色々メーカーを探してみましたが一般建材メーカーの既製でBOSHを入れれるのは
タカラスタンダードさんだけでしたのでメーカーは決定(^^♪
最近フロントオープンのキッチンを選ばれるお客様が増えたのですが、えびすもBOSHを入れたのは初めて✨
とてもカッコイイキッチンに☺
背面のカップボードもタカラさんですが、上部の棚は集成材を設置
長さはどれくらいにするか、奥行きはいくらにするか、どの位置につけるかなど決める事はたくさん!
上下で少しずらして設置したのがとてもバランスよく仕上がりました✨
![]() |
![]() |
![]() |
広々したリビングと収納
収納の大きさは既存のものと一緒ですが使いやすい収納に生まれ変わりました!
キッチン横にあった収納は建具が元々背が低く、上のものが入れにくいとお悩みでしたので、
次は背の高い建具に変え、中の棚は可動棚にし使いやすい収納に☺
押入だった収納のサイズはそのままの大きさですが、中はL字の可動棚に
お打合せの際に何をしまわれるかを何度もお打合せし、この形に決定(^^♪
収納の建具は全てパナソニックのベリティスシリーズの建具を☺
色目はパールグレー✨
![]() |
![]() |
![]() |
![]() |
![]() |
![]() |
![]() |
小規模ではありますがこだわりが沢山つまったリフォームになりました。
元々のお家の家具等とても可愛いものを選ばれるお客様だったので、
色選びもとてもバランスよく可愛いお部屋になりました(^^♪
家具も買われるとおっしゃってたので、きっとさらに可愛いお部屋になっていると思います☺




















































