一戸建て
2025.09.25
神戸市 H様邸






神戸市灘区 H様邸
| 神戸市灘区 H様邸 | 費用感:23,000,000円 |
| 築年数:38年 | 間取り:7LDK→5LDK |
・名前 H様邸
・場所 神戸市灘区
・建物種別 戸建て
・構造 鉄筋コンクリート造
・工期 約3か月
▶︎施工内容
間取り変更/2F床・壁断熱施工/キッチン・UB・洗面台・トイレ入替/
クロス貼替/和室内装貼替/フロアタイル施工/一部二重サッシ設置/
外壁塗装/シャッター入替/外部アクセサリー取付/他
お子様が3人おられ、それぞれに子供部屋をと考え中古戸建をご購入されたH様。
3Fのお部屋はそれぞれの個室として使い、リビングにあたる2Fは家族の集まるお部屋として
とにかく広くとりたいとのご要望を頂きました。
リビングを広くとりたいけど、ランドリールームとファミリークローゼットを設け、
家事動線も楽になればな~というご希望がございました。
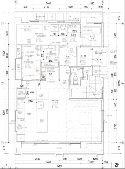
2Fをメインに大きく間取り変更し、床にも断熱材を敷き詰めました。
2F間取り Before→After
![]() |
![]() |
2Fは大きく間取り変更。
鉄筋コンクリート造の為、取れない壁もありプランもとても悩みましたが、
奥様のご要望ができるだけ入れ込めるよう考えた間取りになります。
詳細は下記写真で説明しますのでぜひ↓までスクロールしてください!
3F間取り Before→After
![]() |
![]() |
3Fは大きく間取り変更はなかったのですが、和室④⑤の間の襖を壁にし、
しっかりした個室をご希望でした。
ただ後にまた和室④⑤を元々の襖の間取りに戻したいとのご要望を頂き、とても悩みました。
戻すときできるだけ予算がかからないように和室④側には元の襖を、
和室⑤側に間仕切り壁をたて、それぞれの個室にさせて頂きました。
完工写真

![]() |
![]() |
![]() |
まずはキッチンからご紹介。
広々リビングの中に存在感のあるキッチン。
奥様の強いご希望でキッチンはハンセムを採用。
ハンセムはオーダーキッチンのメーカーになるのでミリ単位でオーダー可能!
キッチンの長さはもちろんの事、引出しやゴミ箱を置くオープンスペースなど、
どれも全てオーダー可能です。
Ⅱ型キッチンのシンクのリビング側も収納がついており、
オープンキッチンでありながら収納力も抜群です!
食洗器もフロントオープンのものをご希望でしたのでBOSHの食洗器を採用。
大容量で尚且つ引出しになっているので使いやすそうです。

![]() |
![]() |
![]() |
続いてリビングスペースです。
リビングのどこかに小さな書斎がほしいとの事キッチンの横にカウンターデスクを設置。
左袖には可動棚を設置。
ちょっとしたこだわりですが手元灯の照明はシュッとしたデザインのものをご提案したく、
KOIZUMIのライトをご提案しがちです。
奥行きも厚みも小さいし、手元でONOFFできるので機能性も良いのでお勧めです。
デスク上のコンセントも家具コンセントを採用し、できるだけ存在感をなくそうと心がけています。
またリビングの解放感を損なわないように、リビングの入口建具だけはハイドアを採用しています。
![]() |
![]() |
![]() |
続いて玄関・廊下。
白を基調とした床材、建具。
建具はPanasonicのベリティスシリーズを採用しています。
玄関入ってすぐ右手には固定棚を設置し、鍵等を置くスペースのされるそうです。
左上の写真をいて頂くとよくわかるのですが、廊下のダウンライトはあえて壁側によせています。
光の入りにくい廊下ですので壁を照らし、できるだけ明るくみせています。
![]() |
![]() |
![]() |
続いて洗面室兼SIC。
かわった間取りになりますがここはH様の拘りの1つです。
シューズインクロークをご希望だったのですが、土間あたりに作れるスペースがなかったので
使いにくいですが廊下にあがってからの1部屋でご提案致しました。
可動棚を設置し、靴以外のものも置けるスペースに。
可動棚前にロールスクリーンも設置し、来客時には隠せるようになっています。
洗面台は洗面室ではなくシューズインクロークに設置。
ここに置くメリットとしては帰ってすぐに手洗いが出来る事。
お客様も洗面室に行かずして手を洗って頂ける事です。
お子様が3人おられ、来客もよくあるとおっしゃるH様のご家庭には
とても理にかなった間取りだなと思いました。
洗面台はキッチンと同じくハンセムのオーダー洗面台。
背面パネルとカウンターの色を揃えたり、扉に框を入れたりと
オーダーならではの素敵な仕様になりました。
![]() |
![]() |
![]() |
洗面室の奥にはファミリークローゼットが続きます。
ここには家族全員の服をしまわれる予定です。
ボックスの方には3人のお子様のランドセルや上着をかけるスペースを作りました。
学校のロッカーみたいで可愛いなとほっこりします☺
可動もできる棚なので、お子様の成長に合わせ使い方が変えれます。
![]() |
![]() |
![]() |
続いてランドリースペースです。
こちらも奥様のこだわりの1つです。
長いカウンターを設置し、アイロンがけをしたりするスペースに。
下には収納ケースを置かれるそうです。
多目的シンクは靴等を洗う用で洗面台とは別にランドリールームに設置。
既設のダクト用穴を利用し、乾太くんも設置しました!
広い一戸建てならではのスペースが出来上がりました。
![]() |
![]() |
浴室と脱衣室。
浴室に関しましては周りの壁が取れない壁だったので、寸法をオーダーできる
タカラスタンダードのグランスパを採用致しました。
今は増えてきてますが、天井を黒色で選んだ時に浴室乾燥機も黒を選べる事ができる
タカラスタンダードは素敵だなと思いました。
ダウンライトの縁もあわせて黒色にし、統一感のある浴室に。
脱衣室はシンプルに可動棚のみが設置されてます。
パジャマ・下着・タオル等の衣類や、掃除用品やシャンプーのストック等、
これだけのスペースがあれば十分かと思います!
![]() |
![]() |
1Fトイレの収納は悩みに悩みました。
H様のご要望は見えない収納でキャビネットの用な箱はつけたくないとの事。
大工さんとあーでもないこーでもないと出来上がったのがこの収納です。
窓台を利用し枠無しの扉をつけ、中に固定棚を設置。
固定棚の高さも奥様と考え、下に掃除用品のブラシを入れれて、
真ん中の段にはトイレットペーパーを2段置けるようなスペースとなっています。
本当に悩みましたがスッキリ納まりました!
トイレはLIXILサティスSを採用。
![]() |
![]() |
階段も建具に合わせパナソニックベリティスシリーズの上貼り施工になります。
![]() |
![]() |
![]() |
![]() |
![]() |
![]() |
3Fは間取りは大きく変更がなく、内装工事をメインです。
既存のフローリングにフロアタイルを上貼りしたり、クロス貼替、畳の新調、建具の取替など
見た目は新築同様の仕上がりです。
お子様部屋はお子様の選ばれたクロスや床材を貼られたり、家族愛をたくさん見れた気がします☺
着工前写真
![]() |
![]() |
![]() |
![]() |
![]() |
![]() |
![]() |
![]() |
![]() |
![]() |
![]() |
![]() |
![]() |
![]() |
![]() |
![]() |
![]() |
![]() |
築年数は経ってますが、1つ1つとても豪華な造りでした。
ここからは施工中のお写真をどうぞ!
施工写真
![]() |
![]() |
![]() |
![]() |
![]() |
![]() |
![]() |
![]() |
![]() |
![]() |
![]() |
![]() |
![]() |
![]() |
![]() |
![]() |
![]() |
![]() |
![]() |
![]() |
![]() |
![]() |
![]() |
![]() |
![]() |
![]() |
![]() |
![]() |
![]() |
![]() |
![]() |
![]() |
![]() |
![]() |
![]() |
![]() |
![]() |
![]() |
![]() |
![]() |
![]() |
![]() |
![]() |
![]() |
![]() |
![]() |
![]() |
![]() |
![]() |
![]() |
![]() |
![]() |
![]() |
![]() |
![]() |
![]() |
![]() |
![]() |
![]() |
![]() |
![]() |
![]() |
![]() |
![]() |
![]() |
![]() |
![]() |
![]() |
外観BeforeAfter
施工前↓![]() |
![]() |
![]() |
施工後↓
![]() |
![]() |
![]() |
タイル貼りの箇所は塗装をしていませんが、全体的に黒に近いグレーを塗られ落ち着いた雰囲気になりました。


































































































































