一戸建て
2025.09.30
吹田市






今回のリフォームは戸建て丸々フルリフォームです!
およそ一年前から入念に打ち合わせをさせていただき、やりたいこと、予算などを何度も考え
リフォームをさせて頂きました!
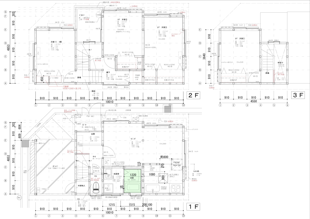
まずは既存図面とプラン図面(BeforeとAfter)をどうぞ!
Before

After

一つだけ注釈を入れさせて頂くと、3Fとなっているんですが、正しくは中二階です!
それでは今回は解体から完成まで順を追って細かく見ていくことにしましょう。
まずは着工前の状態から!
少々古いタイプの戸建ての雰囲気ですね。
和室もしっかりあり、個人的には好きな空間ではあるんですが、ここを一気にリフォームしていきます。
さてまずは解体から
ほぼ骨組みのみとなりました。
ここからいよいよ大工さんの造作が始まります!
大工さんがかなり真剣な表情で見ているのは家の躯体が傾いていないか?
また傾きがあった場合(大抵の場合、地面が変動する関係で家も若干の傾きが出ます)床などに傾きが出ないように調整して下地を組んでいきます。
数ミリ単位での調整が求められるため、これだけ真剣な表情で細かくチェックと墨出し(柱などに線を引き基準の線を出していきます)をしています。
床や柱が先ほどの基準線に沿って少しずつ作られていきます。
今回は元々あった柱を撤去し、部屋の中を遮るような柱をなくしているので、代わりに他の柱で強度をかなり高めています。
建物の外部には足場が組み上がり、屋根に乗っていた瓦が外されました。
今回のリフォームでは家の外部も塗装などをしていくため、ある程度内装の解体が済んだ段階で足場を立てました。足場が立つとどうしても内部と外部で動線が狭くなり、何かと不便も出てくるためギリギリまで足場を待ってもらいました。
中二階以上の階も床の地が組み上がっていきます。
床に見える青い材料は断熱材です。
改めて断熱材を隙間なく入れ、暑さ寒さが外部から侵入するのを防ぎます。
なぐべく多くしっかりと断熱材を入れることで木造であったり築年数が古くても、家として快適な空間にすることができるよ!by大工さん
屋根を見てみましょう
瓦をおろした屋根に改めてしっかりと屋根の下地が組まれました。
ここから新しくスレート屋根を施工していきます。
屋根はこれで完了!すごく綺麗になりましたね!
改めて窓が入る箇所へ、わくとサッシが取り付けられました。
すこしずつ家の顔になってきましたね!
天井と壁の下地が出来上がったので、外部と接する面に断熱材が入れられていきます。
ちなみにこの時、この断熱材の搬入を兼ねて大工さんのお手伝いをしましたが、断熱材が入った室内はかなり暖かかったです!
イメージで言うと部屋全体を羽毛布団で覆っているような、外部からの寒さが入ってこないのと内部の温かさが逃げていかないのがよくわかりました。
断熱材が入れられた部屋から、いよいよ壁や床が貼られていきます!
この日は階段が架けられました!
今まで中二階や三階までは梯子を使っての移動でしたが、ようやく全ての階が階段でつながり
資材の運搬などがスムーズになりました。
さぁいよいよ全てのお部屋の壁や天井、床が出来上がったので各部屋に壁紙を貼っていきます!
一気にお部屋らしくなりますよ!
壁紙が貼られると一気に家・部屋の顔になってきますね!
解体した当初を思うとようやくここまで辿り着いた!といった感じです。
感動です!
さぁそれでは、建具が入り養生が剥がれた、完工写真をどうぞ!
本当に本当に素敵なお宅へ生まれ変わりました!
施工をさせていただいた私たちも、これだけやりがいのある素敵なリフォームに携わることができて幸せでした!
何よりもお引き渡しの際に喜んでくださったお顔を見られてホッとしました。
これからもこのお宅から素敵な笑顔と思い出が溢れますように!
およそ一年前から入念に打ち合わせをさせていただき、やりたいこと、予算などを何度も考え
リフォームをさせて頂きました!
まずは既存図面とプラン図面(BeforeとAfter)をどうぞ!
Before

After

一つだけ注釈を入れさせて頂くと、3Fとなっているんですが、正しくは中二階です!
それでは今回は解体から完成まで順を追って細かく見ていくことにしましょう。
まずは着工前の状態から!
少々古いタイプの戸建ての雰囲気ですね。
和室もしっかりあり、個人的には好きな空間ではあるんですが、ここを一気にリフォームしていきます。
![]() |
![]() |
![]() |
![]() |
![]() |
![]() |
![]() |
![]() |
![]() |
![]() |
![]() |
![]() |
![]() |
![]() |
![]() |
![]() |
![]() |
![]() |
![]() |
![]() |
![]() |
![]() |
![]() |
![]() |
![]() |
![]() |
![]() |
![]() |
![]() |
![]() |
![]() |
![]() |
![]() |
![]() |
![]() |
![]() |
![]() |
![]() |
![]() |
![]() |
![]() |
![]() |
さてまずは解体から
![]() |
![]() |
![]() |
![]() |
![]() |
![]() |
![]() |
![]() |
![]() |
![]() |
![]() |
![]() |
![]() |
![]() |
![]() |
![]() |
![]() |
![]() |
ほぼ骨組みのみとなりました。
ここからいよいよ大工さんの造作が始まります!
![]() |
![]() |
![]() |
![]() |
![]() |
![]() |
![]() |
![]() |
![]() |
![]() |
![]() |
![]() |
![]() |
大工さんがかなり真剣な表情で見ているのは家の躯体が傾いていないか?
また傾きがあった場合(大抵の場合、地面が変動する関係で家も若干の傾きが出ます)床などに傾きが出ないように調整して下地を組んでいきます。
数ミリ単位での調整が求められるため、これだけ真剣な表情で細かくチェックと墨出し(柱などに線を引き基準の線を出していきます)をしています。
![]() |
![]() |
![]() |
![]() |
![]() |
![]() |
床や柱が先ほどの基準線に沿って少しずつ作られていきます。
今回は元々あった柱を撤去し、部屋の中を遮るような柱をなくしているので、代わりに他の柱で強度をかなり高めています。
![]() |
![]() |
![]() |
![]() |
![]() |
![]() |
![]() |
![]() |
![]() |
![]() |
![]() |
建物の外部には足場が組み上がり、屋根に乗っていた瓦が外されました。
今回のリフォームでは家の外部も塗装などをしていくため、ある程度内装の解体が済んだ段階で足場を立てました。足場が立つとどうしても内部と外部で動線が狭くなり、何かと不便も出てくるためギリギリまで足場を待ってもらいました。
![]() |
![]() |
![]() |
![]() |
![]() |
![]() |
![]() |
![]() |
![]() |
![]() |
![]() |
![]() |
中二階以上の階も床の地が組み上がっていきます。
![]() |
![]() |
![]() |
![]() |
![]() |
![]() |
![]() |
![]() |
![]() |
![]() |
床に見える青い材料は断熱材です。
改めて断熱材を隙間なく入れ、暑さ寒さが外部から侵入するのを防ぎます。
なぐべく多くしっかりと断熱材を入れることで木造であったり築年数が古くても、家として快適な空間にすることができるよ!by大工さん
![]() |
![]() |
![]() |
![]() |
![]() |
![]() |
![]() |
![]() |
![]() |
![]() |
屋根を見てみましょう
瓦をおろした屋根に改めてしっかりと屋根の下地が組まれました。
ここから新しくスレート屋根を施工していきます。
![]() |
![]() |
![]() |
![]() |
![]() |
![]() |
![]() |
![]() |
![]() |
![]() |
![]() |
屋根はこれで完了!すごく綺麗になりましたね!
![]() |
![]() |
![]() |
![]() |
![]() |
![]() |
![]() |
改めて窓が入る箇所へ、わくとサッシが取り付けられました。
すこしずつ家の顔になってきましたね!
![]() |
![]() |
![]() |
![]() |
![]() |
天井と壁の下地が出来上がったので、外部と接する面に断熱材が入れられていきます。
ちなみにこの時、この断熱材の搬入を兼ねて大工さんのお手伝いをしましたが、断熱材が入った室内はかなり暖かかったです!
イメージで言うと部屋全体を羽毛布団で覆っているような、外部からの寒さが入ってこないのと内部の温かさが逃げていかないのがよくわかりました。
![]() |
![]() |
![]() |
![]() |
![]() |
![]() |
![]() |
![]() |
![]() |
![]() |
断熱材が入れられた部屋から、いよいよ壁や床が貼られていきます!
![]() |
![]() |
![]() |
![]() |
![]() |
![]() |
![]() |
![]() |
![]() |
![]() |
![]() |
![]() |
![]() |
![]() |
![]() |
![]() |
![]() |
![]() |
![]() |
![]() |
![]() |
![]() |
![]() |
この日は階段が架けられました!
今まで中二階や三階までは梯子を使っての移動でしたが、ようやく全ての階が階段でつながり
資材の運搬などがスムーズになりました。
![]() |
![]() |
![]() |
![]() |
![]() |
![]() |
![]() |
![]() |
![]() |
![]() |
![]() |
![]() |
さぁいよいよ全てのお部屋の壁や天井、床が出来上がったので各部屋に壁紙を貼っていきます!
一気にお部屋らしくなりますよ!
![]() |
![]() |
![]() |
![]() |
![]() |
![]() |
![]() |
![]() |
![]() |
![]() |
![]() |
![]() |
![]() |
![]() |
![]() |
![]() |
![]() |
![]() |
![]() |
![]() |
![]() |
![]() |
![]() |
![]() |
![]() |
![]() |
![]() |
![]() |
![]() |
![]() |
![]() |
![]() |
![]() |
![]() |
![]() |
![]() |
![]() |
![]() |
![]() |
![]() |
![]() |
壁紙が貼られると一気に家・部屋の顔になってきますね!
解体した当初を思うとようやくここまで辿り着いた!といった感じです。
感動です!
さぁそれでは、建具が入り養生が剥がれた、完工写真をどうぞ!
![]() |
![]() |
![]() |
![]() |
![]() |
![]() |
![]() |
![]() |
![]() |
![]() |
![]() |
![]() |
![]() |
![]() |
![]() |
![]() |
![]() |
![]() |
![]() |
![]() |
![]() |
![]() |
![]() |
![]() |
![]() |
![]() |
![]() |
![]() |
![]() |
![]() |
![]() |
![]() |
![]() |
![]() |
![]() |
![]() |
![]() |
![]() |
![]() |
![]() |
![]() |
![]() |
![]() |
![]() |
![]() |
![]() |
![]() |
![]() |
![]() |
![]() |
![]() |
![]() |
![]() |
![]() |
![]() |
本当に本当に素敵なお宅へ生まれ変わりました!
施工をさせていただいた私たちも、これだけやりがいのある素敵なリフォームに携わることができて幸せでした!
何よりもお引き渡しの際に喜んでくださったお顔を見られてホッとしました。
これからもこのお宅から素敵な笑顔と思い出が溢れますように!


































































































































































































































































































